店舗の新装提案

弊社では、住宅リフォームの他に店舗や施設の新装提案をしています。
今回は、お店の新装提案でしたのでご説明させていただきます。
index
まずは、お店の現地調査を行います。
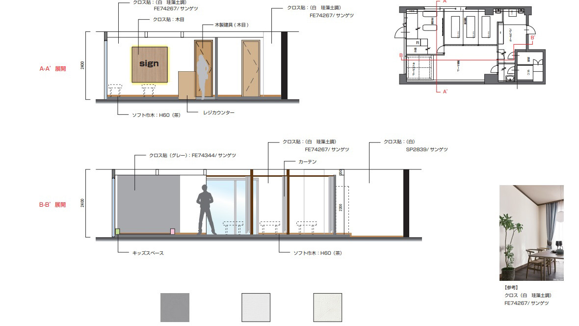
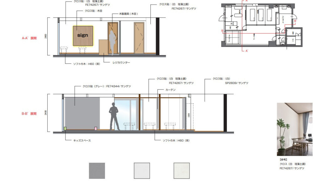
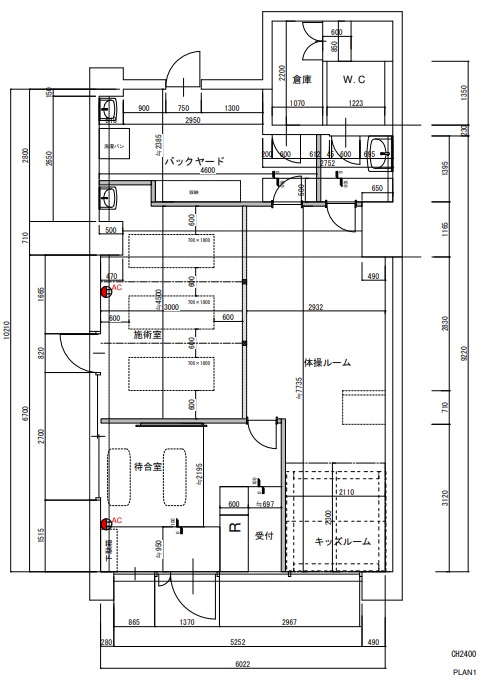
調査するところ、すべての内法寸法と給排水や電気・ガスなどの経路や系統(ある程度は予測)
次に、プラン提案とそれに合わせたお見積りを作成します。
要望の聞き取りをしたものをプラン化します。


見積書を持参し内容のご説明。(相見積りの場合、多数あり)
事業の場合は、融資を受けられることがほとんどなので場所の仮押さえと融資申込みをしていただき、予算の調整を行います。
ご依頼から見積提出までのタイムスケジュールは2週間程度です(最短1週間)。
ご依頼の方はメールにて問い合わせお願い致します。



